Wir präsentieren Ihnen ein zentral gelegenes Dreiparteienhaus im Herzen von Albersloh.
Fotogalerie
Zum Schutz der Privatsphäre werden weitere Fotos der Wohnung ausschließlich im Rahmen eines persönlichen Gesprächstermins zur Verfügung gestellt.
Objektbeschreibung
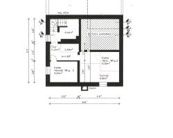
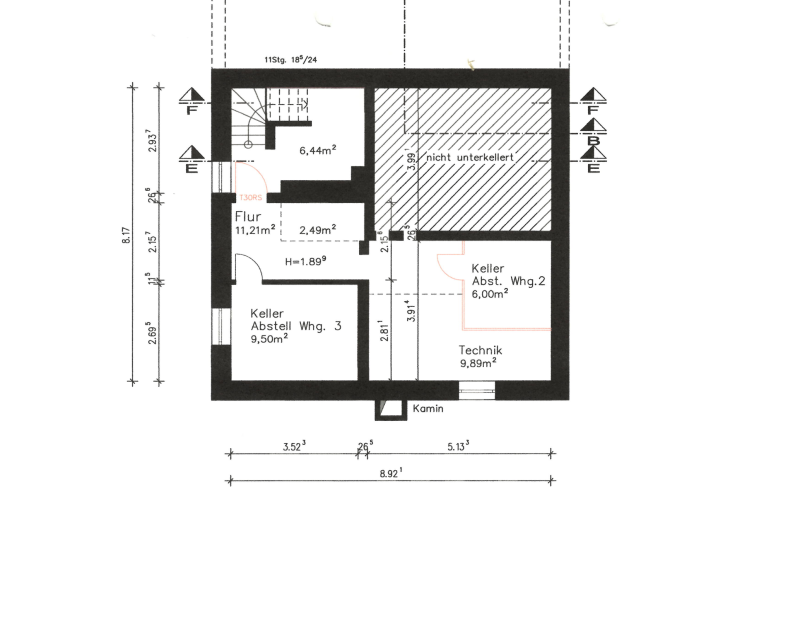
| Objektart: | Mehrfamilienhaus (3 Wohneinheiten), teilunterkellert |
| Grundstück: | 563 m² (Kaufgrundstück) |
| Wohnfläche ca.: | 290 m² |
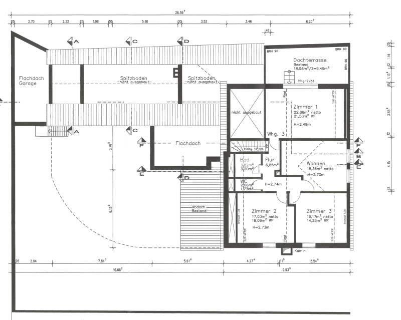
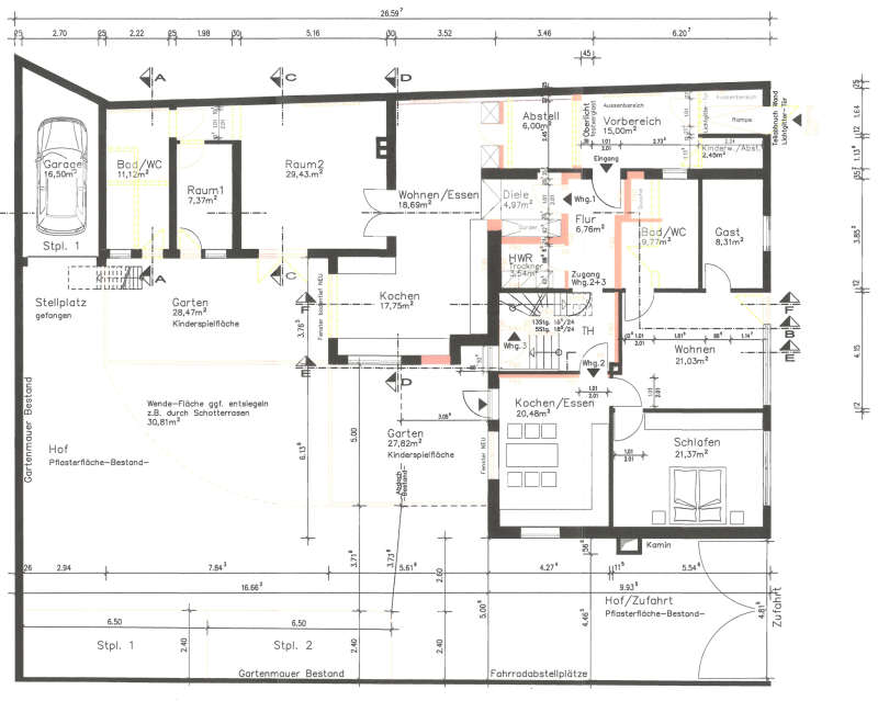
| Wohnungen: | 3 (ca. 90 m², 105 m² und 92 m²) |
| verfügbar: | nach Vereinbarung |
| Heizung: | Zentralheizung |
| Baujahr: | 1912, saniert ca. 2016 |
| Energieträger: | Gas |
| Energieausweis: | Energieverbrauchsausweis (liegt zur Besichtigung vor) |
| Endenergieverbrauch: | xxx kWh/(m² a) |
| Kaufpreis: | 455.000 Euro |
| Käuferprovision: | 3,57 % (inkl. 19 % USt.) |
Dieses im Jahr 1912 errichtete Gebäude vereint historischen Charme mit modernem Wohnkomfort. Ursprünglich als Wohn- und Geschäftshaus mit eigener Metzgerei genutzt, wurde die Immobilie im Jahr 2016 umfassend kernsaniert und in drei hochwertige Wohneinheiten umgewandelt.
Heute präsentiert sich das Haus in einem gepflegten und zeitgemäßen Zustand. Die drei vermieteten Wohnungen verfügen über Wohnflächen von ca. 90 m², 105 m² und 92 m² und bieten durch ihre durchdachten Grundrisse attraktive Wohnlösungen für unterschiedliche Mietergruppen.
Die beiden Erdgeschosswohnungen verfügen jeweils über eigene Terrassen, während die Dachgeschosswohnung mit einem großzügigen Balkon überzeugt. Die zentrale Lage ermöglicht kurze Wege zu allen Einrichtungen des täglichen Bedarfs. Zudem wird die Attraktivität des Standorts durch die geplante Reaktivierung der WLE-Strecke (S-Bahn Anbindung Richtung Münster und Sendenhorst ab 2028) weiter gesteigert.
Weitere Infos erhalten Sie gerne nach Anforderung.
Lage
Wolbecker Straße 9
48324 Sendenhorst

Sonstiges
Der Maklervertrag mit uns kommt durch die Bestätigung der Inanspruchnahme unserer Maklertätigkeit in Textform zustande.
Wir erwarten von den solventen Kaufinteressenten eine aussagekräftige Finanzierungszusage oder einen entsprechenden Bonitätsnachweis.
Alle Angaben basieren auf Angaben des Eigentümers. Eine Haftung für die Richtigkeit dieser Angaben können wir daher nicht übernehmen.
Sollten wir Ihr Interesse geweckt haben, so freuen wir uns auf das erste Gespräch mit Ihnen. Bitte haben Sie dafür Verständnis, dass wir nur Anfragen mit vollständiger Nennung Ihres Namens, Ihrer Anschrift und einer Rückrufmöglichkeit bearbeiten können.
Sie möchten Ihre Immobilie vermieten oder verkaufen? Vertrauen auch Sie auf unsere Kompetenz und jahrzehntelange Erfahrung in der erfolgreichen Vermittlung von Immobilien.
Ansprechpartner

Impressum/Datenschutz - Allgemeine Geschäftsbedingungen (AGB) - Widerrufsbelehrung